一般家庭のキッチン改修工事をいたしました!
新発田市M様邸
キッチン定価:¥852,000
他解体撤去、キッチンの組み立て、大工工事、床・壁・天井等の内装工事、給排水・ガス配管・電気等の設備工事で総額¥2,000,000(税込)位の工事となりました!
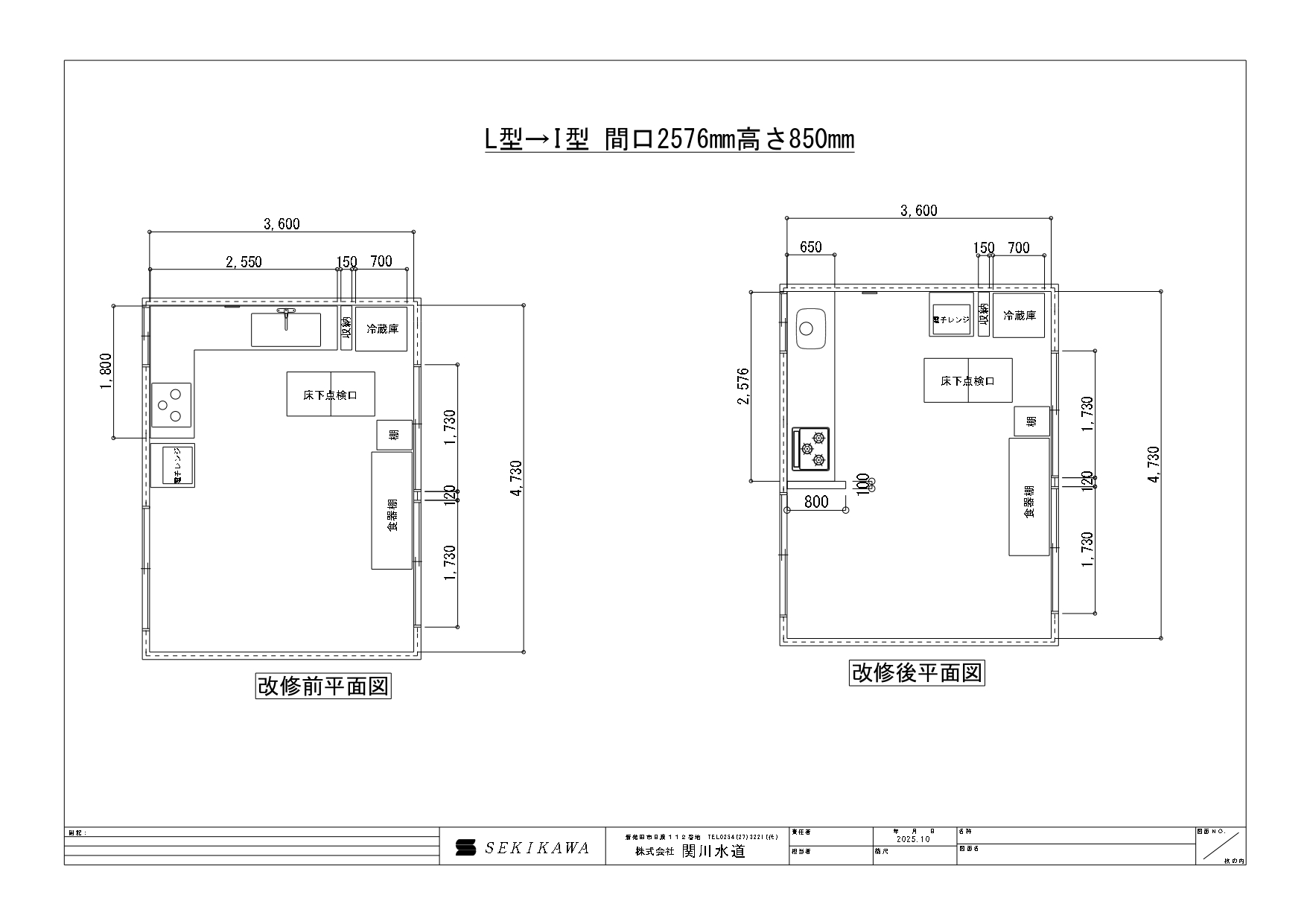
【before】 1988年製サンウェーブのL型キッチン

【after】タカラスタンダードのエーデルI型キッチン
扉:ダークブルー ワークトップ:アクリル人造大理石/ソリッドホワイト パネル:ホーロークリーンキッチンパネル/パールホワイト



キッチン定価:¥852,000
他解体撤去、キッチンの組み立て、大工工事、床・壁・天井等の内装工事、給排水・ガス配管・電気等の設備工事で総額¥2,000,000(税込)位の工事となりました!


扉:ダークブルー ワークトップ:アクリル人造大理石/ソリッドホワイト パネル:ホーロークリーンキッチンパネル/パールホワイト


